cassidym
|
| posted on 6/8/04 at 11:13 PM |
|
|
Finally got the book!!
Delivered today. Very happy to say that most of the content was old hat - I've done my research well!
Must give due - this forum proved to be invaluable.
Now to order the CD from Brad, do a few practice welds and I'm on my way.
Thanx guys.
|
|
|
|
|
niceperson709
|
| posted on 7/8/04 at 12:46 AM |
|
|
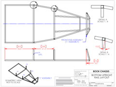
Go to Jim McSorley's site and down load his EXCELENT PDF drawings of the chassis they leave the book for dead each piece of steel acurately
measured and all angles ect see example below
best wishes
Iain
  Rescued attachment BottomUprightLayout.gif
|
|
|
thekafer
|
| posted on 7/8/04 at 02:14 AM |
|
|
When I odered my book they were out. I had to settle for a used "shop copy" that had all the pages loose from the binder (for full price,
thanks Ron!). Then I built my frame from McSorleys down loads for free....and with help from the wonderful fonts of knowllege found here.
Good luck, Have fun! Fletch
I'd rather have a bottle in front of me than a frontal labotomy...
|
|
|