Ben Smith
|
| posted on 30/1/06 at 06:54 PM |
|
|
another R1 won't start!!
Well we tried to start a friends r1 last week. First turn of the key and it was turning over but not firing. we asumed it must be something like the
stand switch or tip over switch but couldn't see anything wrong so we tried again. This time nothing happened at all. We have not been able to
get it to even turn over since. We are both converting our cars to 2002 r1 power so had lots of spares to try. so far we have tried 3 ecu's, 2
starter solonoids and various other bits. One thing we have noticed is that all 4 wires going into the starter solonoid now seem to be permenant live.
All a bit vague I know but any idea's on where to look next and what does everyone else do with the various cut off switches (side stand
etc?).
Thanks
Ben.
|
|
|
|
|
smart51
|
| posted on 30/1/06 at 07:20 PM |
|
|
Hve you got a good engine earth? Have you got good battery voltage? The starter motor will turn the engine over without the ECU, provided the relay
and circuits are correct. To be honest, you don't need any of the bike switch gubbins. You need 12V to go through the starter relay, to the
motor and to earth. You need the crank position on your car ignition barrel to go to the relay coil and from the other side of the coil to ground.
Forget all the side stand switch stuff, thats so that bikers don't fall off if they start it in gear.
If the engine turns over, check that you have fuel. easystart or something similar is the stuff, squirt a bit into the air intakes and turn it over,
it should cough at least. a few drops of fuel or a squirt of WD40 should also work.
If that is no good then check you have a spark. Take out a spark plug and hold the thread against a bolt on the engine. don't hold it against
the magnesium rocker cover. turn the engine over and look for a spark. don't hold the plug near the spark plug hole incase you ignite the fuel!
No spark = ECU / coil / cyclelock problems. deal with those when you get to them. Get the engine to crank first.
|
|
|
Bob C
|
| posted on 30/1/06 at 10:35 PM |
|
|
I watch these threads with interest because in a few weeks time I'll be there, doing that. . .
I'm not using the bike loom (except as a source of connectors) so I have some trepidation about the dreaded 'cycleloc' &
whatever other nasties await me. So good luck Ben & let us know what works & what's expensively wrong!!!
Bob
|
|
|
jimgiblett
|
| posted on 30/1/06 at 10:50 PM |
|
|
Sounds like youve put it into gear but not shorted the clutch switch or the sidestand switch is not shorted properly. As smart51 says get it cranking
first then sort the fuel and spark.
Feed to the starter solenoid should be ignition live.
- Jim
|
|
|
jimgiblett
|
| posted on 30/1/06 at 10:52 PM |
|
|
quote: Originally posted by Bob C
I watch these threads with interest because in a few weeks time I'll be there, doing that. . .
I'm not using the bike loom (except as a source of connectors) so I have some trepidation about the dreaded 'cycleloc' &
whatever other nasties await me. So good luck Ben & let us know what works & what's expensively wrong!!!
Bob
Bob, A man of your electronic abilities should have no problem. But give me a shout if I can help at all.
- Jim
|
|
|
smart51
|
| posted on 31/1/06 at 11:26 AM |
|
|
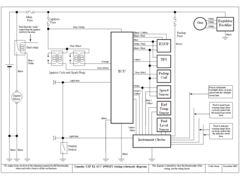
This diagram shows the minimum circuit to get a 1998 R1 running, including the instrument pack. I don't guarantee that there are no mistakes but
it is easier to read than the spaghetti in haynes.
  Rescued attachment r1 stripped min small.GIF
|
|
|
Bob C
|
| posted on 31/1/06 at 12:54 PM |
|
|
Mr Smart51 - that looks like a very handy diagram (printer and keeper) - just one question, on the neutral switch, there seem to be bits of diode
symbols going nowhere - what's that about? can the ecu/cdi neutral connection not just be grounded? (so it will start in gear!!!)
All looks nice and simple! So there are not other security & power & ground connections to the ecu/cdi??
cheers
Bob
|
|
|
smart51
|
| posted on 31/1/06 at 01:09 PM |
|
|
The diagram is a cut down version of the full wiring chart that I made. The diodes can be removed from the picture, they are not needed.
The neutral switch to the instrument pack turns on the neutral indicator lamp. useful for stopping at traffic lights or for telling that you've
jsut shifted into 1st.
I don't know what the neutral into the ECU does but it doesn't stop it from starting.
|
|
|
Ben Smith
|
| posted on 31/1/06 at 03:43 PM |
|
|
We've had another go at the car today. not much progress to report though. We think we might have a problem with main relay. If we bypass this
we can get the engine to turn over although not from the starter button! We don't think this is the only problem though.
I don't suppose anyone has a simple diagram like that for the 2002 injected engine do they? And has any one got a spare main relay to try? The
engine is a 5pw. We are begining to lose the will to live!! The only good thing about this is that we are getting it wrong on his car before we get
mine right
I should say that said friend is an RAC mechanic so my advice is join the AA!
Thanks for all the advice, keep it coming.
Ben
|
|
|
jimgiblett
|
| posted on 31/1/06 at 04:00 PM |
|
|
This should help. It is for the US loom but is very similar.
link
I identified one error/difference in the pdf chart for wire colours but can check when I get home.
Cheers
Jim
|
|
|
Ben Smith
|
| posted on 7/2/06 at 02:38 PM |
|
|
Thanks for everyones help. Got it running this morning. Problem traced to a faulty neutral indicator switch.
Ben.
[Edited on 7/2/06 by Ben Smith]
|
|
|