nitram38
|
| posted on 16/2/07 at 12:30 AM |
|
|
R1 Rad design?
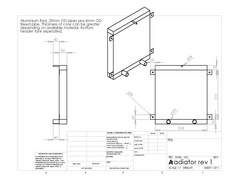
Because of my new design, I want to have an Aluminium Radiator made.
Because of Chassis restraints I can only get a core 256 X 334 X 50.
An 8" Fan will fit and the rad will be at the front of the car (rear engine).
Do you think it will be big enough to cope?
  Radiator solidworks
[Edited on 16/2/2007 by nitram38]
|
|
|
|
|
coozer
|
| posted on 16/2/07 at 07:08 AM |
|
|
Unless your putting a divider up the middle of the rad how will the coolant flow with both inlet and outlet next to each other?
[Edited on 16/2/07 by coozer]
1972 V8 Jago
1980 Z750
|
|
|
Ivan
|
| posted on 16/2/07 at 07:26 AM |
|
|
I presume there's a divider between the two pipes.
Although I am no expert I think the radiator is marginal and you will need to do everything you can to optimise cooling:
1. Move the pipes outwards to the centre of each half of the tank to obtain the best possible flow distribution across the core.
2. Get as much air flow as possible around the connector pipes to assist in cooling - paint them black to increase radiation.
3. Make sure the radiator vents well.
4. Heat transfer is a function of Time raised to the power of 4 so the more time the water spends in the system from leaving the engine to getting
back the cooler it will be. i.e. large delivery pipes with flow turbulence making fences will help.
5. Get the air flow through the radiator optimised i.e. radiator tilted slightly.
6. Could concider a water mister spray on the radiator for traffic jams
7. Only drive in mid winter and into the wind when it's raining
If you have no option but to use this size why not suck it and see - if it doesn't work then go to plan B which is some of the above.
[Edited on 16/2/07 by Ivan]
|
|
|
G.Man
|
| posted on 16/2/07 at 07:53 AM |
|
|
what about the side pods?
You cant get decent size rads in there?
Opinions are like backsides..
Everyone has one, nobody wants to hear it and only other peoples stink!
|
|
|
Mike S
|
| posted on 16/2/07 at 07:58 AM |
|
|
Your proposed new rad is still probably bigger than the original bike one, plus you have got the front to back tubing acting as a radiator as well
(assuming you are going to run them uninsulated in side pods or wherever so you dont overheat the cabin).
I would think it would be ok
There are more horses' asses in this world than there are horses
|
|
|
nitram38
|
| posted on 16/2/07 at 08:32 AM |
|
|
Thanks for the comments Guys.
There will be a devider in the bottom header and the size is only a bit smaller than the arial atom (where I pinched the idea!) The atom supports
engines of up to 2 ltr and the pipes enter in the bottom header. The only difference with my rad is a bleed off pipe for the expansion bottle.
The next car will be a two seater (side by side) version of the sprint-r/atom, so no sidepods. The rad pipes will be aluminium and uninsulated. They
will run through a very small tunnel under the car or on top of the floor pan. Might be useful to keep your hands warm !
I was hoping that someone could measure an R1 core to try and compare it for cross sectional area?.
I know the R1 rad is quite spread out, but it has very small fans and is a lot thinner.
I have just realised that a 10" fan will fit, so most of the rad will be covered, so this should help.
[Edited on 16/2/2007 by nitram38]
|
|
|
nitram38
|
| posted on 16/2/07 at 10:10 AM |
|
|
Cheers for the link. Any chance of some pics?
Because of the distance, I don't think the same R1 pipe take offs will work?
Just spoke to a couple of rad firms. By reducing the top and bottom header tanks I can gain another 60mm of core.
The bottom pipes will be seperated.
Where did you buy the pacet fan from Chris?
[Edited on 16/2/2007 by nitram38]
|
|
|
nitram38
|
| posted on 16/2/07 at 11:06 AM |
|
|
Latest incarnation will now allow more core and 12" fan. Can you use the Coolant sensor on the ecu to control the fan or a seperate switch?
  Rad drawing
  model rad
[Edited on 16/2/2007 by nitram38]
|
|
|
Bob C
|
| posted on 16/2/07 at 06:45 PM |
|
|
Every scrapyard has big piles of rad fans they'll flog for a fiver. Switch it with an RS components thermal switch of the temperature of your
choice & a relay. £100???? that only leaves £150 for the whole of the rest of the car.....
Bob
|
|
|
Bob C
|
| posted on 16/2/07 at 07:14 PM |
|
|
True - but remember these fans are designde to work in death valley while blowing thrruogh a radiator. BECs are much smaller than most tintop engines
& will blow off less heat when idling & there's less parasitic loss ( via alternator) and no aircon. That's the point, you only
need the fan for when you're stuck idling in traffic - if you move natural airflow should be enough & the fan will stop.
If my car boils over in summer (micra rad fan - came stuck on the rad....) I promise I'll let on ;^) - like I will if my oil pressure
transducer drops off...
cheers
Bob
|
|
|
ChrisGamlin
|
| posted on 16/2/07 at 07:15 PM |
|
|
From what I understand of them, radiators generally work best when they are helped by gravity / physics - hot water in at the top, as it cools it
naturally "sinks" to the bottom of the radiator and then out through the exit pipe mounted as low as possible.
That design may well work but i wouldnt expect it to be as efficient as a conventionally laid out rad, so it will likely need to be bigger to cool the
same.
|
|
|
Bob C
|
| posted on 16/2/07 at 07:18 PM |
|
|
PS - my rad fan had its first try-out during the sva test - engine buzzing away for ages at 2500revs.
thankfully it worked juts fine :^)
bob
|
|
|
nitram38
|
| posted on 16/2/07 at 07:27 PM |
|
|
Thanks for all the advice, but I am sure that a front mounted rad far out weighs all of the problems. I used to race Hillman imps and the first thing
you do to the car is mount the rad at the front.
As I said, the rad layout is a copy of the Atom, with both pipes in the bottom header. I think my design is a bit better than theirs as I have a
bleed off at the top on mine.
Aluminium pipes to rad should also help disipate the heat, plus the rad core is 50mm thick which I think is double the R1 rad? I was really looking
for measurements of an R1 rad core to compare my design with.
I think I will definitely go the Pacet route. SVC sell the 12" for £80 + £8 p & p, thanks for the heads up Chris.
At the moment I am just collecting parts. I have virtually everything I need to bolt on except lights and custom exhaust manifold !
I need to find another garage to store my present car and work on the new chassis will commence.
Even have a new Tig for this and a proper pipe angle cutter and pipe bender.
Here is an atom rad that I manage to get a picture of
  Atom Rad
[Edited on 16/2/2007 by nitram38]
|
|
|
nitram38
|
| posted on 16/2/07 at 11:53 PM |
|
|
I am sure that they sell the correct one here
|
|
|
nitram38
|
| posted on 17/2/07 at 12:05 AM |
|
|
I think the bottom of the list is club and the professional one is the "profan"?
I will check when I order
|
|
|
dilley
|
| posted on 18/2/07 at 09:23 AM |
|
|
sorry to hijack, but is it better to have the fan mounted on the front or the back of the rad??
|
|
|
nitram38
|
| posted on 18/2/07 at 09:30 AM |
|
|
I think a fan is 10% more efficient if it is mounted behind the rad, between rad and engine.
My fan will be on the front because of chassis limitations.
|
|
|
Bob C
|
| posted on 18/2/07 at 11:41 AM |
|
|
can't think why that would be - I can think of 3 reasons to put it in front -
1) there's more room
2) it will protect the rad from any flying stones/birds/frogs etc
3) it will be working in cold air so it will last longer
4)I'd have thought it would work better, throttling the input to a fan always back it off more than the output
OK that's 4 reasons
My rad fan? it's behind the radiator of course.......
Bob
|
|
|