MsD
|
| posted on 3/8/13 at 01:36 PM |
|
|
Positioning mirrors.
I need some advice/tips on how you worked out where to put your mirrors.
Did you just put them somewhere near the correct position and hope that the adjustability would bring them into the correct field of view? Or is there
some technical method involving string, swearing and a tape measure?
All advice appreciated as per usual!
Mark.
|
|
|
|
|
theduck
|
| posted on 3/8/13 at 01:42 PM |
|
|
Blue tac and best guess. Though yet to go through IVA so will probably find completely wrongly placed.
|
|
|
Ben_Copeland
|
| posted on 3/8/13 at 02:35 PM |
|
|
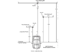
First off, make sure your mirrors are the right size...
  Description
Then make sure you can fulfill this drawing
  Mirror Vision
Or get a 2nd person to hold the mirror while you sit in the seat and move it around till you think you've got the best vision from them
Ben
Locost Map on Google Maps
Z20LET Astra Turbo, into a Haynes
Roadster
Enter Your Details Here
http://www.facebook.com/EquinoxProducts for all your bodywork needs!
|
|
|
pekwah1
|
| posted on 3/8/13 at 03:03 PM |
|
|
Well I just bought some big dumbo mirrors and bolted them at the highest point of the side panel, turns out mr IVA was more than happy!
|
|
|
wicket
|
| posted on 3/8/13 at 03:04 PM |
|
|
We attached the mirrors to lengths of plywood and gaffer taped them to the scuttle. Parked the car on a level surface (the road outside the house was
perfect!!) with enough space behind and to the sides and marked out the marker positions as specified in the manual and adjusted the mirrors until all
the positions could be seen. Then fixed them in place. The biggest problem we had was getting enough height in order to see over the rear wings.
|
|
|
skov
|
| posted on 3/8/13 at 04:13 PM |
|
|
I just stuck mine on and hoped for the best!
Turned out IVA man was very happy with them. He did say a lot of people fail because they don't position them high enough to see over the rear
wings.
|
|
|
daveb666
|
| posted on 3/8/13 at 06:47 PM |
|
|
quote: Originally posted by skov
I just stuck mine on and hoped for the best!
Ditto
|
|
|
coozer
|
| posted on 3/8/13 at 06:53 PM |
|
|
Longacre and two big bike mirrors. Just made sure the bike mirrors were high enough to see over the rear wings and that turned out OK at SVA.
1972 V8 Jago
1980 Z750
|
|
|