JamesyCottony
|
posted on 20/12/14 at 01:59 PM |
|
|
Easy way to work out mudguard coverage?
As title really, anyone have any tips?
Cheers
|
|
|
|
|
AndyW
|
| posted on 20/12/14 at 02:52 PM |
|
|
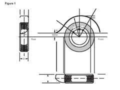
Depends on what you want to achieve? IVA Manual shows
  Description
|
|
|
JamesyCottony
|
| posted on 20/12/14 at 07:40 PM |
|
|
A way to work out the angles of coverage needed 
|
|
|
Marcus
|
| posted on 21/12/14 at 12:15 PM |
|
|
Just fit them so that the front edge is vertically in front of the wheel rim (not tyre). Fit mud flap. Job done. Post IVA remove mud flap if desired.
(I left mine on, less stone damage to face)
Marcus
Because kits are for girls!!
|
|
|
JamesyCottony
|
| posted on 21/12/14 at 06:18 PM |
|
|
quote: Originally posted by Marcus
Just fit them so that the front edge is vertically in front of the wheel rim (not tyre). Fit mud flap. Job done. Post IVA remove mud flap if desired.
(I left mine on, less stone damage to face)
Cheers for that .
With the back of the guard it just has to cover past half way down?
|
|
|
AndyW
|
| posted on 21/12/14 at 08:17 PM |
|
|
quote: Originally posted by JamesyCottony
quote: Originally posted by Marcus
Just fit them so that the front edge is vertically in front of the wheel rim (not tyre). Fit mud flap. Job done. Post IVA remove mud flap if desired.
(I left mine on, less stone damage to face)
Cheers for that .
With the back of the guard it just has to cover past half way down?
If your building for it to go through IVA just look at the picture I posted ^^
That shows the positions.. Simple
|
|
|
JamesyCottony
|
| posted on 27/12/14 at 02:56 PM |
|
|
Does this size look ok guys?

|
|
|