AGK7
|
| posted on 11/11/05 at 05:53 AM |
|
|
Anyone tried making one of these??
Linky
here
Just wondering, i have all the necessary material lying around the yard and it would certainly make a very handy addition to the shed
Just wondering if anyone has tried making something like this, or even had experience using such a crane.
Cheers
Andrew K
Albury, Australia
|
|
|
|
|
Kissy
|
| posted on 11/11/05 at 07:17 AM |
|
|
Not rocket science - just make sure there is triangulation in the trestles, and that the 'I' beam is man enough for the job. Fun bit will
be making the carriage to run on the beam, although it rather defeats the object of a horizontal track if the whole thing is on wheels!
|
|
|
Dave J
|
| posted on 11/11/05 at 03:52 PM |
|
|
I've made something pretty similar using 4" square steel tubing for the main beam and the horizontal pieces the wheels are attached.
The uprights are 3.5" wooden fence posts which slot into sockets (same 4" tube material) I welded centrally to the horizontal wheel
pieces. Similarly I welded vertical sockets onto the ends of the top bar for the top of the wooden posts to fit.
I have made a carriage to go on the top bar which takes a chain hoist, thus allowing it to slide to the left and right.
You definately need the ability to move the chain hoist to the left and right , as once the whole rig is spanning the car you only really have scope
to move the rig forward and backwards on the wheels.
Luckily I managed to scrounge the materials.
This is a very strong gantry. The 4 " steel tube is overkill and as the wooden posts are taking the weight through their length, there's
no problem there.
I've lifted approaching 500kg...no probs.
Cheers
Dave
|
|
|
liam.mccaffrey
|
| posted on 11/11/05 at 04:04 PM |
|
|
I bolted a huge universal beam to the structural roof beams on my shipping container/shed i have a beam trolley running on that. presto
Build Blog
Build Photo Album
|
|
|
niceperson709
|
| posted on 11/11/05 at 09:14 PM |
|
|
Just a couple of points for the home user . Firstly you probably won't need it to be quite so big my brother has one he built out of water pipe
(2& 1/2 inch) and it has pulled mor motors than you've had hot dinners you do not need wheels and unless you have concrete to work on they
could be a liability . the one we use is in three pieces ,two side frame consisting of an inverted "T" with braces and a and a top span
that is like a very wide inverted "U" which slots into the side pieces . This makes it possible to dismantle the gantry for storage when
it is not required an old axel U bolt slides along the top bar for attaching the block and tackle to . My brother built this for virtually nothing as
he had the steel but even if you had to build one with boought steel it would not cost that much.
Best wishes IAIN
life is not the rehearsal , it's the show so don't sit there thinking about it DO IT NOW
http://iainseven.wordpress.com/
|
|
|
AGK7
|
| posted on 14/11/05 at 05:46 AM |
|
|
I have a couple of lengths girder which i could use. If anything they would be heavier than needed. I did think about just fixing it on a rigid
structure but the idea of being able to move it about could come in handy. Would love to make a full running gantry going across both bays of my shed
but it would probably be a bit of an overkill.
Cheers
Andrew K
Albury, Australia
|
|
|
robertst
|
| posted on 25/2/06 at 08:35 PM |
|
|
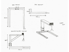
sorry for bringing back this post from the dead, but i am very keen on building my own crane as i am certainly not going to buy one and i can sharpen
my welding skills with this before getting into the chassis itself.
Well, this is what i thought of:
A simpe hoist operated crane which can be dismantled into 2 pieces (space issues at home, so cannot make it an entire piece). I was thinking probably
using 10x5 cm steel tubes, probably 2-2,5mm or even 3mm thick and using four (or as many as it would take) HUGE bolts to secure the vertical shaft.
The base would be 150cm long whereas the top bar would be 100cm long and the whole thing would be 160 cm tall and 100cm wide. i checked some physics
stuff such as moments, torque and inertia to calculate the lengths and thicknesses of the steel so as not to collapse when lifting the engine, and
have been quasi-successful with that.
i plan to get one of these jeep hoists such as those used in 4x4s, i imagine they can pull a measly 200kgs.
i also plan to use it to lift a pinto engine and i understand it weighs around 150 kgs? probably 140 without oil and stuff?
please could anyone give me a linky to any site they may have found about making a diy crane or shed some light on this idea? local engineers around
here?
Thanks!!!
tom.
[edit: sorry about the scale on the drawing, didnt quite take that into account ]
[edit: edit: i was also thinking of just supporting the engine with a foot jack or whatever it's called and hacksawing the entire front
crossmember, unbolting the engine mounts, lift the car and roll out the engine from the front of the car? no crane needed. how feasible is that? am i
going off the deep end with this idea? thanks again]
[Edited on 25/2/06 by robertst]
[Edited on 25/2/06 by robertst]
  Rescued attachment crane.jpg
|
|
|
omega 24 v6
|
| posted on 25/2/06 at 09:36 PM |
|
|
I made one years ago out of 100*50 and pivoted at the bottom for folding up for storage. The lifting beam is controlled by a hydraulic pump and ram
from a lorry cab and is double acting so you need to pump it down too.
I'd post a photo of it but it's out on loan again  (as it always seems to be).
It's not load tested but has I'm told actually lifted the whole front of a car off it's wheels so an engine should be no probs
for it.
Look on www.machinemart.co.uk for ideas
[Edited on 25/2/06 by omega 24 v6]
|
|
|