locoboy
|
| posted on 14/1/10 at 09:22 PM |
|
|
triganometry help!
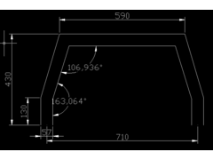
Guys i need to work out the 2 unidentified angles in the drawing below.
The angle that forms the kink in the vertical leg and the angle that takes it to horizontal.
Can anyone help given the dimensions already on the drawing?
  bar
Cheers
Colin
ATB
Locoboy
|
|
|
|
|
MakeEverything
|
| posted on 14/1/10 at 09:30 PM |
|
|
What size pipe?
Kindest Regards,
Richard.
...You can make it foolProof, but youll never make it Idiot Proof!...
|
|
|
omega0684
|
| posted on 14/1/10 at 09:31 PM |
|
|
168.7 degrees, if my trig serves me right
HTH's
[Edited on 14/1/10 by omega0684]
I love Pinto's, even if i did get mine from P&O!
|
|
|
locoboy
|
| posted on 14/1/10 at 09:33 PM |
|
|
57.15mm
Cheers
ATB
Locoboy
|
|
|
omega 24 v6
|
| posted on 14/1/10 at 09:34 PM |
|
|
quote:
168.46 degrees, if my trig serves me right
Not quite as you need the pipe diameter first.
If it looks wrong it probably is wrong.
|
|
|
deezee
|
| posted on 14/1/10 at 09:38 PM |
|
|
I worked it out in AutoCAD to 166.1 degrees. I guessed the object as being 25mm box section. So I'm probably miles out
|
|
|
omega 24 v6
|
| posted on 14/1/10 at 09:40 PM |
|
|
171.82 degrees is my answer
If it looks wrong it probably is wrong.
|
|
|
locoboy
|
| posted on 14/1/10 at 09:42 PM |
|
|
There are 2 angles though...............
ATB
Locoboy
|
|
|
omega0684
|
| posted on 14/1/10 at 09:44 PM |
|
|
quote: Originally posted by omega 24 v6
quote:
168.46 degrees, if my trig serves me right
Not quite as you need the pipe diameter first.
no you dont, all you need to do is work out tan^-1of 0.2 and then minus that from 180. from his drawing it takes the pipe diameter into account from
the bottom measurement. (as he has put his marker in the centre of the tubes)
all i did was 710-590 = 120 then do 120/2 = 60
430-130 = 300 then its just simple trig, tan (Alpha) = opp/adj = 0.2
tan^-1 0.2 = 11.31
180-11.3 = 168.7
i might be a little rusty, haven't done trig for 7 years
[Edited on 14/1/10 by omega0684]
I love Pinto's, even if i did get mine from P&O!
|
|
|
omega 24 v6
|
| posted on 14/1/10 at 09:47 PM |
|
|
OK so overall bottom width is 710 plus 57.15
equals
767.15
Minus the top size of 590
equals 177.15
divide by 2 to give base of triangle
equals 88.575
Tan of angle = opp/adj
so 300 ( 430 -130) divided by 88.575
equals 3.387
so inv tan equals 81.72 and then add the 90 degrees
equals 171.723
If it looks wrong it probably is wrong.
|
|
|
omega 24 v6
|
| posted on 14/1/10 at 09:50 PM |
|
|
quote:
no you dont, all you need to do is work out tan^-1of 0.2 and then minus that from 180. from his drawing it takes the pipe diameter into account from
the bottom measurement. (as he has put his marker in the centre of the tubes)
Was the way I did it at first but then wondered why someone asked for the diameter of the pipe.
So when you do it your way you are forming the triangle hypontenuse from the outside of the top measurement to the middle of the pipe in the bottom
measurement. Not entirely the correct line IMHO
If it looks wrong it probably is wrong.
|
|
|
omega 24 v6
|
| posted on 14/1/10 at 09:54 PM |
|
|
quote:
There are 2 angles though...............
If you mean the top one then all angles of a rightt angle triangle add up to 180 degrees so 90 plus 81.72 equals 171.72 away from 180 leaves 8.28 plus
the 90 degree so a total of 98.28
If it looks wrong it probably is wrong.
|
|
|
mattf
|
| posted on 14/1/10 at 10:19 PM |
|
|
I made it 163.55 degrees. I make arctan 3.3869 to be 73.55
|
|
|
Toltec
|
| posted on 14/1/10 at 10:23 PM |
|
|
quote: Originally posted by mattf
I made it 163.55 degrees. I make arctan 3.3869 to be 73.55
I agree with that (checked on Excel, and a Casio) as well as the calculation to find lengths of the triangles sides.
|
|
|
omega 24 v6
|
| posted on 14/1/10 at 10:25 PM |
|
|
quote:
I made it 163.55 degrees. I make arctan 3.3869 to be 73.55
I concur I had my calc set on Grads instead of degrees DOH
[Edited on 14/1/10 by omega 24 v6]
If it looks wrong it probably is wrong.
|
|
|
locoboy
|
| posted on 14/1/10 at 10:47 PM |
|
|
Your way above me guys!
so the 2 angles will be???????
ATB
Locoboy
|
|
|
omega 24 v6
|
| posted on 14/1/10 at 11:10 PM |
|
|
163.55 for the vertical angle ( the one you marked as unknown). And 106.45 for the other one
If it looks wrong it probably is wrong.
|
|
|
loggyboy
|
| posted on 14/1/10 at 11:26 PM |
|
|
OOOPS didnt see your post giving the Dia so see below:
  Rescued attachment AngleQuery.gif
|
|
|
02GF74
|
| posted on 15/1/10 at 07:19 AM |
|
|
quote: Originally posted by mattf
I made it 163.55 degrees. I make arctan 3.3869 to be 73.55
that is what I make it, see below.
  Rescued attachment angle.JPG
|
|
|
02GF74
|
| posted on 15/1/10 at 07:21 AM |
|
|
beaten to it ..... should be tan c = ... in the above ... oops!!!
.... and then 300/88.75
[Edited on 15/1/10 by 02GF74]
|
|
|
locoboy
|
| posted on 15/1/10 at 07:25 AM |
|
|
Awsome,
Thanks a lot guys, It has helped me out of a bit of a sticky situation.
The power of LCB comes to the rescue again
ATB
Locoboy
|
|
|
Richard Quinn
|
| posted on 15/1/10 at 11:59 AM |
|
|
Don't forget that if this is being done on a "programmable" bender, you will have to include an element of over bending to allow for
spring back.
|
|
|