Pdlewis
|
| posted on 4/11/13 at 08:54 PM |
|
|
Any Structureal Engineers or roofers about? :)
I know completely off topic but as always there is a fountain of knowledge in here
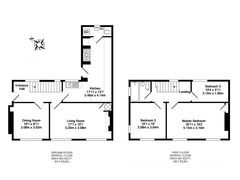
We are moving house shortly and looking to extend when we move in, the problem Im having is working out the roof, from the plan and photo below we
want to square off the L share and put an extension where the table and chairs in approx 3x4m. the problems i see are:
1. The current flat roof looks like it falls towards the place where i want the extension
2. the current flat roof is attached to the neighbors house
3. We want to remove the 80% of the existing wall an replace with some sort of RSJ so the current kitchen will become one big room
I was reading that iff you have over 30% of your roof flat it makes it hard t0 get insurance and this would take us near the 30 bu as we only want to
put 2 new walls in and the the room is quite deep (4m) im not sure we could support a pitch roof
Any comments advice welcome
  Description
  Description
Build Photo Album
Updated 05/02/2009
|
|
|
|
|
Barkalarr
|
| posted on 4/11/13 at 09:35 PM |
|
|
<advert>
My cousin Jason @Burlens http://www.burlens.com/ should be able to point you in the right direction.
Depending on where you are (regs change between county apparently) he should be able to answer your question.
</advert>
|
|
|
Smokey mow
|
| posted on 4/11/13 at 11:16 PM |
|
|
quote: Originally posted by Pdlewis
im not sure we could support a pitch roof
Any comments advice welcome
Typically it's not the materials of construction of the roof which will be the determining factor but rather the imposed load which the roof is
designed to carry (think weight of snow in the winter).
The materials of construction for a flat roof are very approximately 3/4 of the weight of a slate pitched roof (0.75KN/m2 compared to 1.0KN/m2) but
because a flat roof can't shed the snow in winter the imposed load (and depth of snow build up) will be 50% greater than a pitched roof
(1.5KN/m2 vs 1.0KN/m2)
If the original structure is in doubt there are other options to support the new roof without putting any load on the existing building, such as by
using posts and beams or you could partially underpin the existing wall.
[Edited on 4/11/13 by Smokey mow]
|
|
|
iank
|
| posted on 5/11/13 at 09:25 AM |
|
|
No help but that kitchen is a terrible layout as is, not surprised you want to change it!
--
Never argue with an idiot. They drag you down to their level, then beat you with experience.
Anonymous
|
|
|
Pdlewis
|
| posted on 5/11/13 at 09:47 AM |
|
|
yeah its one of those things, we liked the house and location so figured extending it would be fine
then the more I look at it and think about it without actually having access to the house yet the more complications I can see
Build Photo Album
Updated 05/02/2009
|
|
|