Printable Version | Subscribe | Add to Favourites
New Topic New Poll New Reply
Author: Subject: gearbox
Stuart_B

posted on 25/9/09 at 05:28 PM Reply With Quote
gearbox

hi all, does anybody have the dimmsions of a type 9 box?

or a type 9 box laying next to a mx5 six speed box from a 2005 onwards car?(duratec)

cheers

stuart





black mk indy, 1.6pinto on cbr600 bike carb's.

View User's Profile View All Posts By User U2U Member
mcerd1

posted on 25/9/09 at 05:34 PM Reply With Quote
I've got a proper ford drawing of one on the computer at work - I got it form someone on here, but if no one else can find it I'll dig it out on monday

in the mean time:







what other sizes do you need ?

[Edited on 25/9/09 by mcerd1]





-

View User's Profile View All Posts By User U2U Member
Stuart_B

posted on 25/9/09 at 05:42 PM Reply With Quote
cheers, i need, overall legth, belhousing lenght, and the widest point, with the bellhousing.

cheers

stuart





black mk indy, 1.6pinto on cbr600 bike carb's.

View User's Profile View All Posts By User U2U Member
ss1turbo

posted on 25/9/09 at 05:50 PM Reply With Quote






Long live RWD...

View User's Profile Visit User's Homepage View All Posts By User U2U Member
mcerd1

posted on 25/9/09 at 05:57 PM Reply With Quote
the bellhosing is about 7" long (std iron 4cly one from a pinto)
the bellhousing is about 14" wide across the starter (the release arm might stick out a little more)

the whole lot (with the bellhosing) is 31" long

the box itself is about 13" of that and is just over 7" wide and 10" high

the tail housing is only 4.5" wide







-

View User's Profile View All Posts By User U2U Member
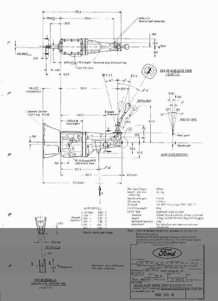
mcerd1

posted on 25/9/09 at 05:58 PM Reply With Quote
thats the drawing, i wonder how well my measurements stand up against that





-

View User's Profile View All Posts By User U2U Member
Stuart_B

posted on 26/9/09 at 06:46 AM Reply With Quote
thanks you evrey one, i will start messuering now.lol

stuart





black mk indy, 1.6pinto on cbr600 bike carb's.

View User's Profile View All Posts By User U2U Member

New Topic New Poll New Reply


go to top






Website design and SEO by Studio Montage

All content © 2001-16 LocostBuilders. Reproduction prohibited
Opinions expressed in public posts are those of the author and do not necessarily represent
the views of other users or any member of the LocostBuilders team.
Running XMB 1.8 Partagium [© 2002 XMB Group] on Apache under CentOS Linux
Founded, built and operated by ChrisW.