zetec7
|
posted on 28/4/06 at 09:41 PM |
|
|
Ford T-5 shifter extension
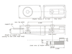
Just finished building a shift extension for my T-5 (attached to a Zetec 2.0) and it works perfectly. I designed it on AutoCAD first, then built
it. If anyone is interested (and I can figure out how to do it) I can post the CAD drawing and photos.
|
|
|
|
|
trialsman
|
| posted on 28/4/06 at 10:11 PM |
|
|
If that T5 is the same as a US T5 then I would love the drawings, Russ
|
|
|
zetec7
|
| posted on 28/4/06 at 11:05 PM |
|
|
I'm in Canada, so it is a North American-spec T-5 (non-world class, althjough I don't think that matters). The extension itself is made
of 1/4" X 1" steel flatbar, and some DOM (drawn-over-mandrel) tubing for the shifter cup. I'll attach a few photos to my archive.
I wanted mine removeable, so what fits intop the original shifter cup is a bicycle-neck-style expander I made of DOM tubing, a bolt, and a nut. Works
great, holds tight, but you can get it out in 5 sec.
|
|
|
zetec7
|
| posted on 28/4/06 at 11:21 PM |
|
|
I've posted the drawing and photos on my archive. Here's the drawing, anyway...
  Rescued attachment T5 shift ext.jpg
|
|
|