James
|
| posted on 22/11/07 at 02:52 PM |
|
|
Tips for laying laminate floor
Have been asked by someone to help them lay a laminate floor.
Everyone says it's pretty easy to do, but I don't want to cock it up as she's paying so any tips would be useful.
There seem to be all sorts of tools available to help you, like ratchet straps and stuff... any use?
Also, choosing the underlay. Someone said "make sure you use a quality underlay" but I don't know what that means ie. what
constitutes a better one?
It's to go on a vinyl tiled, solid concrete floor. Room is about 18'x12' plus out into the hallway/front door if that info is
relevent.
Thanks!
James
------------------------------------------------------------------------------------------------------------
"The fight is won or lost far away from witnesses, behind the lines, in the gym and out there on the road, long before I dance under those lights."
- Muhammad Ali
|
|
|
|
|
Agriv8
|
| posted on 22/11/07 at 03:00 PM |
|
|
James,
From someone who has laid both the Glue type and click type go for the click together type ( its a little more expensive ) but is 10 times easier to
lay and you dont have the problems with the excess glue.
Regards
Agriv8
Taller than your average Guy !
Management is like a tree of monkeys. - Those at the top look down and see a tree full of smiling faces. BUT Those at the bottom look up and see a
tree full of a*seholes .............
|
|
|
owelly
|
| posted on 22/11/07 at 03:07 PM |
|
|
Take door off the hinges and cut the bottom off the doorframes to prevent it looking shoit. Also take off the skirtings if you can, and lift them
above the laminate so it hides the 10mm expansion gap without having to resort to the dreaded beading bodge!
Start in a left hand corner with the groove against the wall and use the bit you cut off at the right hand wall to start the next row on the left hand
side again.
Put socks on the dog just to watch it struggle.....
http://www.ppcmag.co.uk
|
|
|
mookaloid
|
| posted on 22/11/07 at 03:08 PM |
|
|
quote: Originally posted by owelly
Put socks on the dog just to watch it struggle.....
 
"That thing you're thinking - it wont be that."
|
|
|
whitestu
|
| posted on 22/11/07 at 03:15 PM |
|
|
I've used two different types of underlay [3mm foam and fibreboard type].
I found the fibre stuff to be miles better.
Like this stuff: underlay
Stu
|
|
|
matt_claydon
|
| posted on 22/11/07 at 03:27 PM |
|
|
I bought the underlay in your link from screwfix and I can assure you its 3mm foam! It looks like tiles in the picture but actually its a concertina
folded 10mx1m sheet of foam.
[Edited on 22/11/07 by matt_claydon]
|
|
|
matt_claydon
|
| posted on 22/11/07 at 03:28 PM |
|
|
I found this site very useful: http://www.ultimatehandyman.co.uk/laminate_flooring/
|
|
|
whitestu
|
| posted on 22/11/07 at 04:02 PM |
|
|
Sorry - I didn't get mine from screwfix - was just using the pic as it looked like the same stuff.
Mine came from Wickes and is about 9mm thick, and made of some type of compressed fibre material.
This is it:
Wickes
underlay
Cheers
Stu
|
|
|
emsfactory
|
| posted on 22/11/07 at 04:31 PM |
|
|
i have done quite a few of these. Even did a 20 odd mm oak one once. That was measure 8 times and try not to cut unless you have too!
I always measure the room size and devide it by the length of the boards and the width. Corrisponding with the direction your laying.
If you get any small decimals, 0.1, 0.2 its easier to cut the first board in half rather than farting about with a sliver of wood at the end.
Click stuff will take you a quarter of time the glue stuff takes.
As always measure twice etc and mark the waste areas of the board before you cut so you dont do anything silly at the saw.
|
|
|
Aico
|
| posted on 22/11/07 at 05:22 PM |
|
|
Yea, get the clickstuff. I did mine back in the day when it wasn't there yet. Didn't do the clicktype, but it must be much easier Do
they even have the glue type this time and day? Don't forget foil or don't you need it with click laminate?
|
|
|
MikeRJ
|
| posted on 22/11/07 at 06:11 PM |
|
|
Your supposed to start along the longest wall with a complete width of board, but my advice would be to make sure that by the time you work accross to
the other wall, that the gap is either small enough with a complete board, or large enough that you can cut the board down lengthways easily
Someone I know very well reached the other wall and discovered I...err, i mean they needed a sliver of board about 1 cm thick to close the gap up
sufficiently.
By the way, the laminate is very hard stuff and can knacker a wood saw quite quickly. I ended up using a very coarse hacksaw blade, a jigsaw and a
coping saw for the really fiddly bits. Remember to turn the board upside down and cut from the back when using jigsaw to prevent the laminate
chipping off.
Definately measure twice, it's easy to mark and chop the wrong end off a board when you get to the end of a row if you don't pay
attention!
Oh, and make sure you get some decent knee pads, it really does your knees no favours at all kneeling on it for hours.
|
|
|
britishtrident
|
| posted on 22/11/07 at 06:18 PM |
|
|
You don't need anything like the massive expansion gap the makers recommend, this really them being extra conservative to give them a get out
clause. Just let the board aclimitise to the room for a couple of days before you start.
|
|
|
Shamrock GS
|
| posted on 22/11/07 at 07:05 PM |
|
|
Get someone in who knows what they are doing!
If you are determined to DIY leave the panels in the room for a couple of days to get used to the Temperature. My brother laid his straight from the
shop and within a few days thay had shrunk with the central heating leaving a gap at the wall.
Gary
“Let your plans be dark and as impenetratable as night, and when you move, fall like a thunderbolt.”
Sun Tzu, The Art of War
|
|
|
James
|
| posted on 22/11/07 at 07:28 PM |
|
|
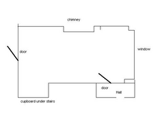
Quick sketch of the room in question:
  sitting room layout
------------------------------------------------------------------------------------------------------------
"The fight is won or lost far away from witnesses, behind the lines, in the gym and out there on the road, long before I dance under those lights."
- Muhammad Ali
|
|
|
James
|
| posted on 22/11/07 at 07:39 PM |
|
|
That's all really good info there folks... thank you muchly!
Good idea on the temperature/humidity normalisation..... used to have to do this with hard discs for our massive storage array at work!
Thanks again,
James
------------------------------------------------------------------------------------------------------------
"The fight is won or lost far away from witnesses, behind the lines, in the gym and out there on the road, long before I dance under those lights."
- Muhammad Ali
|
|
|
Avoneer
|
| posted on 22/11/07 at 10:04 PM |
|
|
Got mine from Ikea.
About 1/2 the price of everywhere else.
They also do brilliant fibreboard squares about 8mm thick.
You'll also need a very sharp saw (buy a new one), one of the plastic blocks with a groove in it for banging the boards together and a metal bar
with an opposite return at each end for pulling the ends boards in.
Ikea also sell all this in a pack for about a fiver.
Pat...
No trees were killed in the sending of this message.
However a large number of electrons were terribly inconvenienced.
|
|
|