irvined
|
| posted on 6/12/09 at 07:48 PM |
|
|
Ali Fuel tank
Hello,
I'm looking to have a fuel tank made up, can anybody make one up for me? looking to have it ready in the next couple of weeks (Ie, in time for
fitting over christmas.) bearing in mind I live in Holland.
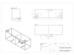
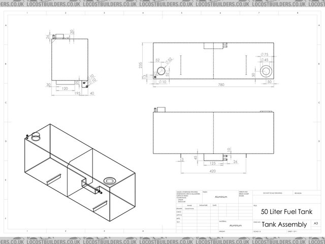
Its 50Liters and fits a book chassis with plenty of room for the axle, and with enough space for a jerry can in the boot just in case. If anybody
wants the drawings to make their own, let me know.
  Rescued attachment Tank Assembly.jpg
http://irvined.blogspot.com
|
|
|
|
|
irvined
|
| posted on 6/12/09 at 07:51 PM |
|
|
My first attempt at an engineering drawing.
  Rescued attachment Tank Assembly.jpg
http://irvined.blogspot.com
|
|
|
maximill666
|
| posted on 6/12/09 at 08:02 PM |
|
|
Drop Deneo a u2u on here, he's your man.
|
|
|
coozer
|
| posted on 6/12/09 at 08:52 PM |
|
|
2nd for deneo, was up there last week and top class ali welder.
Drop him a u2u with the link to the drawings and your sorted.
1972 V8 Jago
1980 Z750
|
|
|
eddie99
|
| posted on 13/2/10 at 10:28 AM |
|
|
I'd do a search for Deneo before you order!
http://www.locostbuilders.co.uk/viewthread.php?tid=130013
[Edited on 13/2/10 by eddie99]
|
NOTE:This user is registered as a LocostBuilders trader and may offer commercial services to other users
|
tomblyth
|
| posted on 28/2/10 at 03:49 PM |
|
|
Deneos done work for me "altered a zetec sump,fuel tank to my drawin, expansion tank , in alloy some other tuff in steel and its all been spot
on! i'd recommend him any day!!!
|
|
|
prawnabie
|
| posted on 28/2/10 at 06:47 PM |
|
|
Id do exactly the opposite and tell you not to use deneo. The tank he sent me is useless and he will not take it back to repair it - avoid at all
costs!
|
|
|
boggle
|
| posted on 28/2/10 at 06:56 PM |
|
|
did you ever get a tank made irvined???
just because you are a character, doesnt mean you have character....
for all your bespoke parts, ali welding, waterjet, laser, folding, turning, milling, composite work, spraying, anodising and cad drawing....
u2u me for details
|
PLEASE NOTE: This user is a trader who has not signed up for the LocostBuilders registration scheme. If this post is advertising a commercial product or service, please report it by clicking here.
|