Description

Forum Code:
External link: (Use this on other forums)


Description

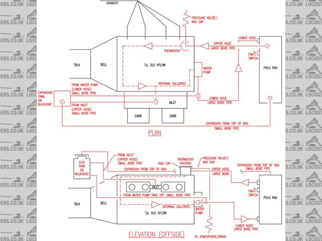
xflow cooling.jpg
Image code: 105885

The 2014 MGJ Winter Stages 18 comp2.jpg
Comments:
Please log in to add a comment
Threads linked to this photo:
In thread 'xflow polo rad plumbing'


go to top






Website design and SEO by Studio Montage

All content © 2001-16 LocostBuilders. Reproduction prohibited
Opinions expressed in public posts are those of the author and do not necessarily represent
the views of other users or any member of the LocostBuilders team.
Running XMB 1.8 Partagium [© 2002 XMB Group] on Apache under CentOS Linux
Founded, built and operated by ChrisW.